Stavební pouzdro STARK dvoukřídlé
Související produkty
Detailní popis produktu
Stavební pouzdro STARK pro dvoukřídlé dveře
Pevná ocelová konstrukce stavebního pouzdra zajišťuje vysokou tuhost pouzdra. Systém je vybaven kováním se zkoseným profilem kola s nezávislými kluznými ložisky. Pouzdro se instaluje do sádrokartonové stěny.
Dveře skryté ve zdi, v pouzdru, dokonale zapadnou do moderního interiéru. Díky tomuto systému není potřeba v interiéru další prostor pro otevření dveřní křídla. Jsou praktickým řešením nejen pro malé prostory.
Technické parametry:
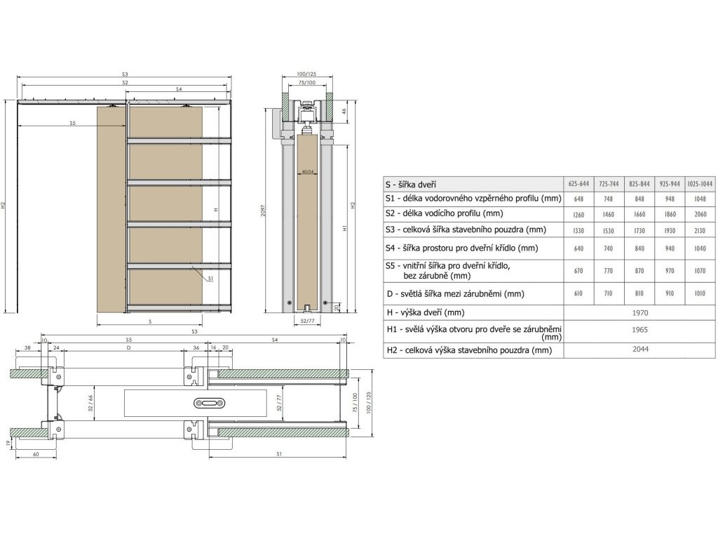
| Materiál: | ocel |
| Tloušťka zdi (mm): | 100/125 |
| Šířka dveřního křídla (mm): |
600/700/800/900 |
| Maximální tloušťka dveřního křídla (mm): | při tloušťce zdi 100 mm dveře 40 mm při tloušťce zdi 125 mm dveře 54 mm |
| Počet dveřních křídel: | 2 |
| Instalace: | do sádrokartonu |
Sada obsahuje:
- kompletní pouzdro v rozloženém stavu - velmi jednoduché složení
- kompletní posuvné dveřní kování
- vodící profil
K systému můžete dokoupit tlumení, které naleznete v souvisejících produktech.
Hlavní přednosti posuvného systému STARK:
Nezabírá žádný prostor při otevírání.
Odnímatelná kolejnice i po kompletní montáži.
Možnost provedení dveřní kazety až do výšky 3 m.
Možnost montáže tichého samozavíracího mechanismu pro posuvné dveře.
U stavebního pouzdra existuje možnost přizpůsobit si rozměr pouzdra a nechat si jej vyrobit na míru - neváhejte nás kontaktovat.
DVEŘE ani ZÁRUBNĚ nejsou součástí dodávky
Doplňkové parametry
| Kategorie: | Stavební pouzdra pro posuvné dveře |
|---|---|
| Záruka: | 2 roky |
| Stavební pouzdro - nosnost (kg): | 100 |
| Stavební pouzdro - počet dv. křídel: | 2 |
| Stavební pouzdro - šířka dveřního křídla (mm): | 60, 70, 80, 90 |
| Stavební pouzdro - tl. zdi (mm): | 100, 125 |
| Stavební pouzdro - max. tl. dveřního křídla: | 40, 54 |
Hodnocení produktu
Buďte první, kdo napíše příspěvek k této položce.
